Fasteignaleitin
Skráð 17. nóv. 2025
Deila eign
Deila

Kjarnagata 41 íbúð 402

FjölbýlishúsNorðurland/Akureyri-600
102.1 m2
5 Herb.
4 Svefnh.
1 Baðherb.
Verð
69.900.000 kr.
Fermetraverð
684.623 kr./m2
Fasteignamat
61.000.000 kr.
Brunabótamat
59.200.000 kr.
Byggt 2016
Lyfta
Garður
Útsýni
Fasteignanúmer
2300436
Húsgerð
Fjölbýlishús
Byggingarefni
Steypt
Númer hæðar
4
Númer íbúðar
2
Vatnslagnir
Byggt 2016
Raflagnir
Byggt 2016
Frárennslislagnir
Byggt 2016
Gluggar / Gler
Byggt 2016
Þak
Byggt 2016
Lóðarréttindi
Leigulóð
Svalir
Suðursvalir
Upphitun
Gólfhiti
Matsstig
7 - Fullgerð bygging
Gallar
Lak úr lögnun í sökkul í baðherbergisinnréttingu. Var lagað.
EIGNAVER 460-6060   
 
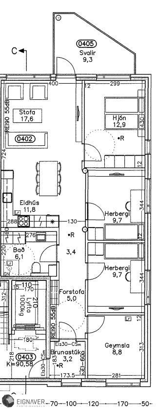
Kjarnagata 41 - 402
Mjög góð 102,2 fm 4ra-5 herbergja íbúð á 4. hæð í góðu fjölbýli með lyftu.  Mjög rúmgóð og vel skipulögð íbúð. Fallegt útsýni. 

Nánari lýsing:
Forstofa með flísum á gólfi, góðir skápar.
Svefnherbergi eru fjögur þar af er eitt skráð sem geymsla, parket á gólfum og góðir skápar eru í herbergjum.
Stofa með parketi á gólfi, útgangur er út góðar 9,3 fm. suðursvalir, Gott útsýni.
Baðherbergi flísar á gólfi og veggjum, sturtugólf er einhalla með glervegg, Góð innrétting þar sem gert er ráð fyrir þvottavél og þurrkara.
Eldhús parket á gólfi , mjög góð innrétting.
Sérgeymsla ca.2. fm er í sameign. Er ekki inn í fermetratölu eignar.
Sameiginleg hjóla og vagnageymsla 


ATH: Þessi íbúð er teiknuð sem 4ra herbergja en nýtist sem 5 herbergja þar sem geymslan er parketlögð og með fataskáp þannig að hægt er að nýta hana sem herbergi. Sérgeymsla í sameign á neðstu hæð.

Nánari upplýsingar veita:
Begga           s: 845-0671   / begga@eignaver.is
Tryggvi          s: 862-7919   / tryggvi@eignaver.is
Arnar             s: 898-7011   / arnar@eignaver.is


 
DagsetningFasteignamatKaupverðStærðFermetraverðNothæfur samningur
17/11/20152.110.000 kr.29.400.000 kr.102.1 m2287.952 kr.
Byggt á upplýsingum úr Þjóðskrá Íslands frá 2006-2025

Sambærilegar eignir

Skoða eignina Sómatún 7 201
Skoða eignina Sómatún 7 201
Sómatún 7 201
600 Akureyri
97 m2
Fjölbýlishús
413
690 þ.kr./m2
66.900.000 kr.
Skoða eignina Byggðavegur 86
Skoða eignina Byggðavegur 86
Byggðavegur 86
600 Akureyri
130.1 m2
Fjölbýlishús
514
550 þ.kr./m2
71.500.000 kr.
Skoða eignina Austurbrú 14 - 107
Austurbrú 14 - 107
600 Akureyri
77.3 m2
Fjölbýlishús
211
896 þ.kr./m2
69.250.000 kr.
Skoða eignina Hvannavellir 6 nh
Bílskúr
Hvannavellir 6 nh
600 Akureyri
141.2 m2
Tví/Þrí/Fjórbýli
412
495 þ.kr./m2
69.900.000 kr.
Fasteignaleitin
Öflugur fasteignaleitarvefur með einföldu og notendavænu viðmóti sem býður upp á ítarlegar upplýsingar um fasteignir, þróun verðlags og fróðleik um fasteignamarkaðinn.
Hafðu samband
© Copyright 2025 - Fasteignaleitin