Fasteignaleitin
Skráð 3. nóv. 2025
Deila eign
Deila

Stefnisvogur 40

Nýbygging • FjölbýlishúsHöfuðborgarsvæðið/Reykjavík/Laugardalur-104
95.1 m2
3 Herb.
2 Svefnh.
1 Baðherb.
Verð
85.900.000 kr.
Fermetraverð
903.260 kr./m2
Fasteignamat
8.250.000 kr.
Brunabótamat
0 kr.
Mynd af Guðlaugur Jónas Guðlaugsson
Guðlaugur Jónas Guðlaugsson
Löggiltur fasteignasali
Þvottahús
Lyfta
Garður
Bílastæði
Sameig. Inng.
Fasteignanúmer
2535409
Húsgerð
Fjölbýlishús
Byggingarefni
Steypt
Númer hæðar
4
Hæðir í húsi
5
Númer íbúðar
10
Vatnslagnir
Nýtt
Raflagnir
Nýtt
Frárennslislagnir
Nýtt
Gluggar / Gler
Nýtt
Þak
Nýtt
Lóðarréttindi
Leigulóð
Svalir
Upphitun
Gólfhiti
Inngangur
Sameiginlegur
Matsstig
2 - Botnplata
RE/MAX og REIRVERK kynna í einkasölu:
Vel skipulagðar og vandaðar íbúðir á flottum stað í Vogabyggð. Stefnisvogur 38-46, 104 Reykjavík.

Fjármögnunarmöguleiki í gegnum REIR20
REIR20 er ný lausn fyrir kaupendur á eignum REIR verk.
Þú leggur fram að lágmarki 10% af kaupverði fasteignar – REIR20 leggur til allt að 20% á móti.
Fjárfestum saman í þinni framtíð. Sjá allar frekari upplýsingar á heimasíðu www.Reir20.is


Íbúðir skilast fullbúnar með gólfefnum og með Quartz borðplötum, bæði inn í eldhúsi og inn á baðherbergi. Vönduð heimilistæki, innfeld tæki, ísskápur, frystir og uppþvottavél.
Gólfhiti er í öllum íbúðum með sér dreifikistu fyrir hverja íbúð. Sjálfstæð loftræsti samstaða er fyrir hverja íbúð með inn- og útkasti á lofti.
Byggingaraðili er Reir verk ehf.

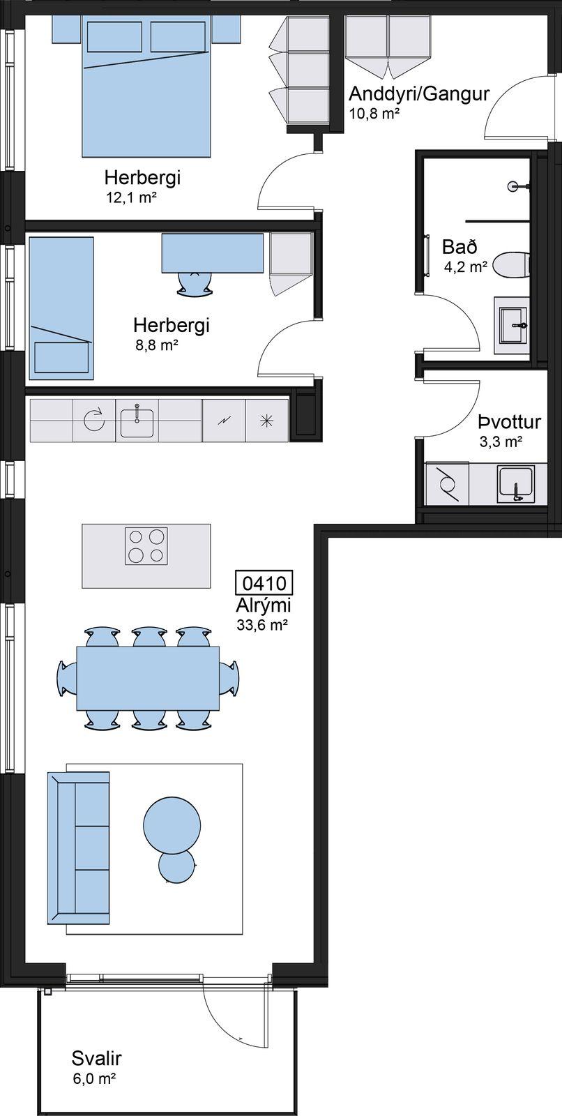
Nánar um eign: Íbúð nr. 410, Stefnisvogur: 40
Eignin er þriggja herbergja íbúð á 4. hæð, birt stærð 86,0 fm. Eigninni tilheyrir geymsla í kjallara, birt stærð 9,1 fm. 
Birt heildarstærð séreignar er 95,1 fm.
Íbúðinni fylgir sér stæði í bílakjallara.

Sjá má skilalýsingu, verðlista og nánari upplýsingar um íbúðirnar inn á heimasíðu verkefnisins: https://stefnisvogur.is/
 
Upplýsingar um Stefnisvog 38-46
Húsið skilast fullbúið að utan. Húsið er steinsteypt, einangrað og klædd að utan með áli. Þak er viðsnúið, steypt með halla, tvöfalt lag er af eldsoðnum tjörupappa, einangrað ofan á plötu og ferging. Yfirborð svala er klætt með timbri eða hellulagt.
Gluggakerfi íbúða er frá BYKO og er ál-tré. Inngangshurðir í stigaganga eru álhurðir. Sameiginleg lóð verður frágengin skv. teikningum lóðahönnuða. Snjóbræðsla er í helstu göngustígum á lóð.
Húsið er fjögurra til fimm hæða lyftu fjölbýlishús með samtals 82 íbúðum í þrem stigahúsum og einni íbúð með sérinngangi. Bílageymsla er með tengimöguleikum fyrir hleðslu rafbíla. Öllum íbúðum fylgir geymsla auk afnotaréttar af hjóla- og vagnageymslu. Snjóbræðsla er lögð í helstu gönguleiðum utan við hús.
 
Að verkinu standa eftirtaldir aðilar:
Byggingaraðili hússins er Reir verk ehf.
Arkitekt og aðalhönnuður er Arkþing Nordic ehf.
Verkfræðihönnun, Vektor Verkfræðistofa ehf. sá um hönnun á burðarvirki og lögnum.
Mannvit sá um hljóðhönnun.
Brunahönnun sá um brunahönnun.
Raflagnahönnun, Raflax sá um raflagna- og lýsingahönnun.
 
Nánari upplýsingar veita:
Magnús Már Lúðvíksson löggiltur fasteignasali í síma 699-2010 / maggi@remax.is
Guðlaugur J. Guðlaugsson löggiltur fasteignasali í síma 661-6056 / gulli@remax.is
Guðný Þorsteinsdóttir löggiltur fasteignasali í síma  771-5211 / gudnyth@remax.is
Bjarný Björg Arnórsdóttir löggiltur fasteignasali í síma 694-2526 / bjarny@remax.is
 
Gjöld sem kaupandi þarf að standa straum af vegna kaupanna:
1.  Stimpilgjald af kaupsamningi er almennt 0,8%, en 0,4% ef um fyrstu kaup er að ræða og 1.6% ef um lögaðila er að ræða. Miðast af heildar fasteignamati.
2.  Þinglýsingargjald af kaupsamningi, veðskuldabréfi, mögulegu veðleyfi o.fl. - kr. 2.700 af hverju skjali.
3.  Lántökugjald lánastofnunar -  Nánari upplýsingar á heimasíðum lánastofnana.
4. Umsýslugjald til fasteignasölu kr. 69.900.-
 
 
Engin gögn fundust fyrir þessa eign
Fasteignanúmer
2535409
Byggingarefni
Steypt
Númer hæðar
B
Númer eignar
50
Fasteignamat samtals
0 kr.
Matsstig
1 - Samþykkt

Sambærilegar eignir

Skoða eignina Stefnisvogur 44
Bílastæði
Skoða eignina Stefnisvogur 44
Stefnisvogur 44
104 Reykjavík
103.3 m2
Fjölbýlishús
413
870 þ.kr./m2
89.900.000 kr.
Skoða eignina Stefnisvogur 44
Skoða eignina Stefnisvogur 44
Stefnisvogur 44
104 Reykjavík
95.9 m2
Fjölbýlishús
413
906 þ.kr./m2
86.900.000 kr.
Skoða eignina Stefnisvogur 44
Bílastæði
Skoða eignina Stefnisvogur 44
Stefnisvogur 44
104 Reykjavík
103.3 m2
Fjölbýlishús
413
861 þ.kr./m2
88.900.000 kr.
Skoða eignina Stefnisvogur 44
Bílastæði
Skoða eignina Stefnisvogur 44
Stefnisvogur 44
104 Reykjavík
95.6 m2
Fjölbýlishús
413
899 þ.kr./m2
85.900.000 kr.
Fasteignaleitin
Öflugur fasteignaleitarvefur með einföldu og notendavænu viðmóti sem býður upp á ítarlegar upplýsingar um fasteignir, þróun verðlags og fróðleik um fasteignamarkaðinn.
Hafðu samband
© Copyright 2025 - Fasteignaleitin